At Maltawide Properties we pride ourselves on our friendly, dedicated, professional and personal service when dealing with either commercial or residential sales, lettings, valuations and management.
Our aim is to offer you the best advice concerning Real Estate in Malta and Gozo and to guide you through the sometimes difficult process of buying and selling property.
Featured Properties
Don’t miss these great opportunities of our short listed properties!
-
4
Featured23448 | Sliema | Town house
Superbly converted Charming Townhouse located Close to Stella Maris Church in UCA. Impeccably finished and maintained to impressive standards this Foreign owned home comprises a welcoming entrance hall, sitting room, dining room, fitted kitchen overlooks a Sunny private level back garden, ideal for entertaining, living room, study, 2/3 double bedrooms,…
Bedrooms3Bathrooms2 -
4
Featured23441 | Sliema | Maisonette
First floor traditional corner maisonette in quiet UCA location – Hall, sitting room, kitchen/dining, 3 bedrooms, bathroom, WC, washroom and private roof. Patterned floors and wooden apertures.
Bedrooms3Bathrooms1 -
7
Featured23435 | Sliema | Town house
Well kept townhouse – living room, dining room, fitted kitchen, 2 double bedrooms, single room, bathroom, shower room, boxroom, washroom and private roof. WITHIN UCA.
Bedrooms3Bathrooms2 -
7
Featured23397 | Salina | Apartment
First floor SEAFRONT APARTMENT with lift – Hall, kitchen/living/dining with seafront balcony, 2/3 bedrooms (one presently equipped as study), bathroom, shower ensuite and back terrace with some country views. FULLY FURNISHED AND AIR CONDITIONED.
Bedrooms3Bathrooms2
For Sale
Browse through our varied property selections
22811 | Hamrun | Apartment
New development, currently being offered on plan and will be…
22812 | Hamrun | Apartment
New development, currently being offered on plan and will be…
22785 | San Gwann | Penthouse
Superbly finished and furnished penthouse with lovely unique 100 square…
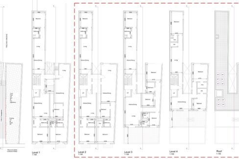
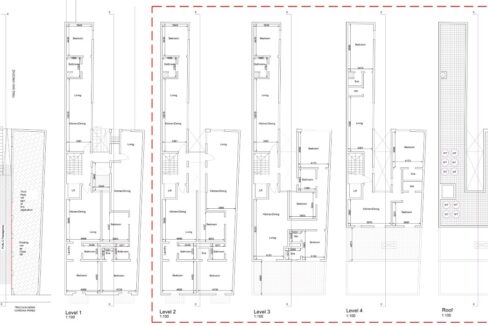
22793 | Sliema | Apartment
New two bedroom apartments, currently being offered on plan. Layout…
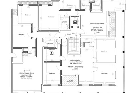
22794 | Sliema | Apartment
New, three bedroom apartments with wheelchair access, currently being offered…
22796 | Swieqi | Apartment
New, three bedroom apartments currently being offered on plan and…
For Rent
Find your perfect home to rent from our collection.
Recently Added
Discover a varied selection of properties just added!
For Rent
For Sale
Agent
Get in touch with our professional real estate agent.
News & Updates
From real estate industry and beyond.
Buy or Sell